广西柳州柳江区人民政府门户网站! 今日是:
模式切换

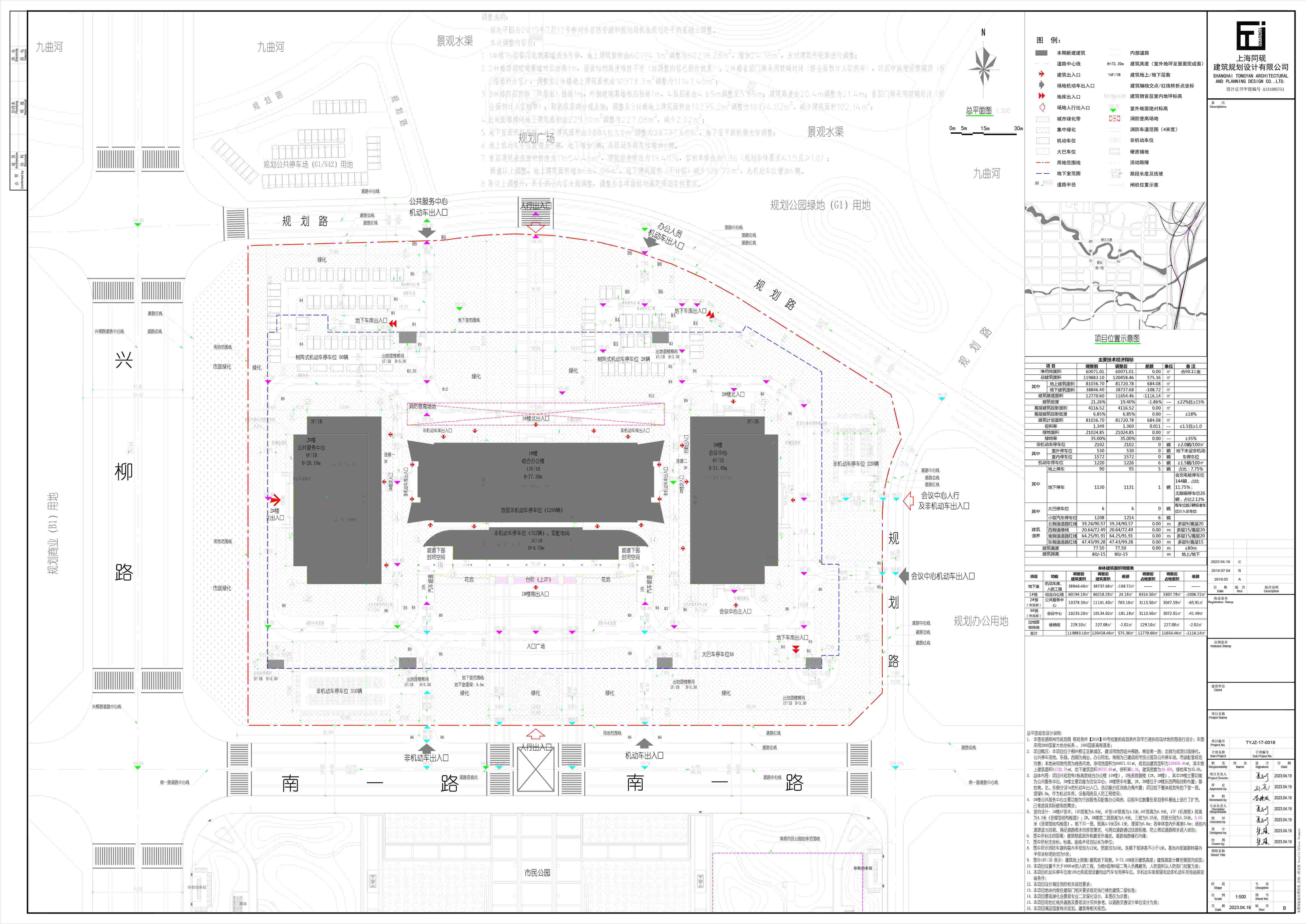
“柳江区兴柳综合楼项目”规划总平调整(2023-094#)已经我局审批通过

来源: 柳州市自然资源和规划局  |   发布日期: 2023-05-31 18:00   

“柳江区兴柳综合楼项目”规划总平调整(2023-094#)
已于2023年5月26日经我局审批通过
(柳州市柳江区新城安居投资有限公司
  柳州市柳江区兴柳路以东、南一路以北、东一路以西A地块)

×
×
中长期规划
“柳江区兴柳综合楼项目”规划总平调整(2023-094#)已经我局审批通过

来源: 柳州市自然资源和规划局  |   发布日期: 2023-05-31 18:00   

“柳江区兴柳综合楼项目”规划总平调整(2023-094#)
已于2023年5月26日经我局审批通过
(柳州市柳江区新城安居投资有限公司
  柳州市柳江区兴柳路以东、南一路以北、东一路以西A地块)